Меню
О компании
Доставка
Контакты
Cтатьи
Оплата
Металлоизделия
Личный кабинет
Каталог
Наш адрес:
г. Москва, ул Академика Варги, д. 8, к. 1
г. Москва, ул Академика Варги, д. 8, к. 1
Телефоны:
+7 495 409-12-78
sale@a-energ.ru
Понедельник-пятница: с 8.00 до 18.00
Суббота-воскресенье: доступны в мессенджерах и по почте
Перейти в контакты
+7 495 409-12-78
sale@a-energ.ru
Заказать звонок
0
0 ₽
Высоковольтное и щитовое оборудование
Высоковольтное оборудование
Изоляторы высоковольтные
Оборудование высоковольтное коммутационное
Оборудование для ЛЭП
Щиты и шкафы, шинопровод
Аксессуары и комплектующие для щитов и шкафов
Переходник на DIN рейку
Клеммные зажимы
Климатическое оборудование для щитов и шкафов
Комплектное щитовое оборудование
Корпуса щитов и шкафов
Распределительный шкаф пустотелый
Щиты механизации РУСП
Системы сборных шин
Гребенка распределительная
Телекоммуникационные шкафы и аксессуары
Шинопровод
Шкафы сборной конструкции
Щиты и панели для счетчиков электроэнергии
Генераторы электроэнергии и элементы питания
Батарейки, аккумуляторы, зарядные устройства
Аккумуляторы
Батарейки
Зарядные устройства
Генераторы электроэнергии
Бензо-дизельные генераторы
Изделия для электромонтажа
Арматура кабельная/Изоляционные материалы
Аксессуары для светильников
Аксессуары кабельные
Кабельные наконечники и соединители (гильзы)
Гильза соединительная для алюминиевых проводников под опрессовку
Гильза соединительная для медных проводников под опрессовку
Гильза соединительная со срывными болтами
Зажим соединительный, ответвительный
Муфты кабельные
Термоусаживаемые и изоляционные материалы
Перчатка термоусаживаемая
Рукав ремонтный термоусадочный
Трубка термоусадочная
Изделия крепежные, метизы
Анкерный крепеж
Болты, винты
Втулки, резьбовые шпильки
Гайки, шайбы
Гвозди
Дюбели, Шурупы, саморезы
Заклепки
Строительные смеси, герметик, клей, растворитель
Такелаж
Коробки, клеммы и сопутствующие товары
Клеммные зажимы
Клемма соединительная безвинтовая
Одно-многополюсная клеммная колодка
Перегородка концевая и разделительная для клеммной колодки
Перемычка клеммной колодки
Проходная клеммная колодка
Коробки распределительные/ установочные и аксессуары
Распределительная коробка/корпус для монтажа на стене и на потолке
Системы сборных шин
Нулевая шина
Разъемы, соединители
Разъемы силовые
Система штекерного монтажа электросети зданий
Электрические соединители различного назначения
Инструменты, техника
Бытовая техника и электроника
Бытовая техника мелкая
Бытовая электроника
Инструмент, измерительные приборы и средства защиты
Инструмент ручной, средства для монтажа
Биты, адаптеры и переходники
Для штукатурно-отделочных работ
Измерительные инструменты
Ключи
Лестницы, стремянки, подъемные механизмы
Набор ручных инструментов
Отвертки
Приспособления для прокладки кабеля
Расходные материалы
Садовый инструмент и инвентарь
Система хранения инструмента
Столярно-слесарный инструмент
Ударно-рычажный инструмент
Шарнирно-губцевый инструмент
Инструменты для опрессовки, резки, снятия изоляции
Оборудование для протяжки кабеля
Предохранители
Рабочая одежда, средства защиты
Указатели напряжения и устройства безопасности
Электроизмерительные приборы
Электроинструменты и аксессуары для них
Аксессуары
Электроинструменты
Оборудование паяльное и сварочное
Газосварочное оборудование
Оборудование паяльное
Электросварочное оборудование
Кабеленесущие системы
Системы для прокладки кабеля
Аксессуары для металлических лотков универсальные
Аксессуары кабельных лотков монтажные
Крышка угловой секции кабельных лотков
Соединитель для кабельных лотков
Кабель-каналы монтажные и аксессуары
Заглушка для настенного кабель-канала
Зажим кабельный для кабель-канала
Короб распределительный щелевой
Коробка монтажная для настенного кабель-канала
Коробка распределительная для систем кабель-каналов
Поворот для настенного кабель-канала
Разъем для настенного кабель-канала
Рамка для ввода настенного кабель-канала в стену/потолок/щит
Соединитель на стык для настенного кабель-канала
Угол внутренний для настенного кабель-канала
Угол Т-образный для настенного кабель-канала
Кабель-каналы напольные и аксессуары
Кабель-канал напольный
Соединитель для напольного кабель-канала
Кабель-каналы настенные (парапетные, для монтажа ЭУИ) и аксессуары
Крышка для настенного кабель-канала
Перегородка разделительная для настенного кабель-канала
Угол внешний для настенного кабель-канала
Кабель-каналы перфорированные и аксессуары
Зажим для распределительного щелевого короба
Кабель-каналы плинтусные и аксессуары
Кабель-канал плинтусный
Угол внутренний для плинтусного кабель-канала
Лоток кабельный лестничный
Лоток кабельный листовой
Секция угловая для кабельных лотков
Лоток кабельный проволочный
Огнестойкие кабель-каналы
Пластиковая гофрированная труба
Рукава для защиты кабеля
Рукав защитный металлический
Уплотнительное кольцо
Системы монтажные несущие
Кронштейн для кабельного лотка
Трубы для прокладки кабеля
Заглушка трубы для электропроводки
Муфта соединительная для электромонтажных труб
Распорка для труб защиты кабеля
Указатели напряжения и устройства безопасности
Системы напольных и подпольных каналов, электромонтажных колон
Лючки и аксессуары
Электромонтажные колонны
Кабели, провода и аксессуары
Кабели и провода
Кабели и провода для нестационарной прокладки
Кабели и провода связи
Кабели и провода силовые для стационарной прокладки
Кабели контрольные
Кабели специального назначения
Провода и шнуры различного назначения
Системы ввода и крепления для кабеля
Вводы кабельные и аксессуары
Ввод кабельный/сальник
Контргайка для кабельного ввода
Изделия крепежные для кабеля
Зажим/Клипса для крепления труб
Скоба крепежная
Хомут кабельный (стяжка)
Климатические и инженерные системы
Отопительные приборы, вентиляция, технологические и инженерные системы
Вентиляторы
Водоснабжение
Кабель нагревательный и аксессуары
Кондиционеры и аксессуары
Система водяного отопления
Система электрического отопления
Системы вентиляции
Терморегуляторы, термостаты, приборы управления обогревом
Электрические приводы и двигатели
Сантехника
Канализационная система
Муфты, фитинги сантехнические
Радиаторы, конвекторы
Низковольтное и промышленное электрооборудование
Датчики/сенсоры
Бесконтактные датчики
Датчики физических величин (напряжения, тока и т.п.)
Позиционные датчики
Низковольтное оборудование
Выключатели дифференцальные модульные
Устройство защитного отключения (УЗО)
Выключатели нагрузки (рубильники)
Выключатель автоматический модульный
Выключатель автоматический силовой
Дополнительные устройства модульной системы
Выключатель/переключатель модульный для распределительного щита
Дополнительные устройства модульной системы
Источники питания, трансформаторы
Кнопки управления
Кнопки управления
Контакторы, пускатель магнитный
Низковольтные устройства различного назначения и аксессуары
Переключатели
Посты управления и джойстики
Предохранители
Вставка цилиндрического предохранителя
Плавкий предохранитель низковольтный ножевой
Преобразователи частоты, устройства плавного пуска
Приборы измерения и учета
Сигнальные лампы и зуммеры
Промышленные контроллеры и автоматизация производства
Логические контроллеры и аксессуары
Промышленная сеть
Средства человеко-машинного интерфейса
Реле
Измерительные реле
Исполнительные реле
Реле времени, таймеры
Реле контроля
Освещение
Лампы (источники света)
Лампы газоразрядные
Лампы галогенные
Лампы люминесцентные
Лампы накаливания
Лампы светодиодные
Лампы специального назначения
Светотехника
Аварийное освещение и световые указатели
Аксессуары для светильников
Аппаратура пускорегулирующая
Взрывозащищенные световые приборы
Иллюминационное, декоративное освещение
Лента светодиодная и комплектующие
Опоры, мачты освещения
Прожекторы и светильники направленного света
Светильники для освещения высоких пролётов и туннелей
Светильники линейные, для модульных и магистральных систем освещения
Светильники наружного освещения
Светильники настенно-потолочные
Светильники настольные, напольные, станочные
Фонари и переносные световые приборы
Связь, телекоммуникации
Антенны и спутниковые технологии
Антенны и аксессуары
Кабельные технологии
Домашние системы контроля доступа и комфорта
Домофонные системы
Звонки дверные и аксессуары
Система управления комфортом "Умный дом"
Средства коммуникации
Структурированные кабельные системы
Активное оборудование для СКС
Изделия монтажные для СКС
Компоненты системы на основе медных кабелей
Компоненты системы на основе оптических кабелей
Телефонные системы, техника для офиса
Техника для офиса
Устройства и средства безопасности
Системы пожарной, охранной сигнализации и аварийного оповещения
Оборудование для видеонаблюдения
Системы аварийного оповещения
Системы охранной сигнализации
Системы пожарной сигнализации
Средства пожаротушения и первой помощи
Система водяного пожаротушения
Устройства заземления, молниезащиты и защиты от перенапряжений
Устройства заземления
Кронштейн монтажный для переносного заземления
Шина заземляющая
Устройства защиты от перенапряжений
Элементы молниезащиты
Устройства оптической и акустической сигнализации
Общепромышленное оборудование
Электроустановочные изделия
Аксессуары для электроустановочных изделий
Блоки комбинированные
Вилки
Выключатели, переключатели, диммеры
Датчики движения, детекторы освещенности, таймеры
Рамки, декоративные элементы, основания для ЭУИ
Вставка/крышка для коммуникационных технологий
Розетки
Удлинители, блоки розеток, разветвители, переходники
Электроустановочные устройства различного назначения
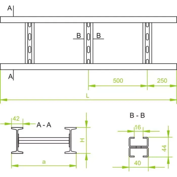
Вертикальный кабельрост DDH400H80/3 404240 DKC
Вертикальный кабельрост DDH400H80/3 404240 DKC
В закладки
В сравнение
Производитель:
BAKS
Модель:
404240
Отзывы:
(0)
По запросу
Отзывов
0
Вопросы
0
Отзывы
0
/ 5
средний рейтинг товара
Написать отзыв
Написать отзыв
Вертикальный кабельрост DDH400H80/3 404240 DKC
Моя оценка:
Примечание:
HTML разметка не поддерживается! Используйте обычный текст.
Продолжить
0
0
0
0
0
Нет отзывов о данном товаре. Станьте первым, оставьте свой отзыв.
+ Задать вопрос
Нет вопросов о данном товаре, станьте первым и задайте свой вопрос.
Задать вопрос
Если у Вас есть вопросы по этому товару, заполните форму ниже, и мы ответим в ближайшее время.
Продолжить
0 ₽
Вертикальный кабельрост DDH400H80/3 404240 DKC
0
RUB